[*]: THE CONFIDENTIAL PORTION HAS BEEN OMITTED PURSUANT TO A REQUEST FOR CONFIDENTIAL TREATMENT AND THE OMITTED MATERIAL HAS BEEN FILED SEPARATELY WITH THE COMMISSION.
Exhibit 10.2
NINTH AMENDMENT TO LEASE
(Norwegian Cruise Line – The Landing at MIA)
THIS NINTH AMENDMENT TO LEASE (“Amendment”) is dated effective and for identification purposes as of June 30, 2015 (the “Effective Date”), and is made by and between SPUS7 MIAMI ACC, LP, a Delaware limited partnership (“Landlord”), and NCL (BAHAMAS) LTD., a Bermuda company, d/b/a Norwegian Cruise Line (“Tenant”).
RECITALS:
WHEREAS, Landlord’s predecessor-in-interest (Hines REIT Airport Corporate Center LLC) and Tenant entered into that certain Lease Agreement dated December 1, 2006 (“Original Lease”), as amended by that certain First Amendment dated December 1, 2006, Second Amendment dated March 20, 2007, Third Amendment dated July 31, 2007, Letter Agreement dated August 1, 2007, Fourth Amendment dated December 10, 2007, Fifth Amendment dated February 2, 2010, Sixth Amendment dated April 1, 2012, Seventh Amendment dated June 29, 2012, and Eighth Amendment dated January 28, 2015 (collectively, the “Lease”), pertaining to the premises currently comprised of a total of approximately 205,798 rentable square feet of space (of which 125,806 rentable square feet of space are located in 7665 Corporate Center Drive, Miami, Florida (“Building 11”) and 72,925 rentable square feet of space are located in 7650 Corporate Center Drive, Miami, Florida (“Building 10”) (collectively, the “Original Office Premises”), and 7,067 rentable square feet of space are located in 7245 Corporate Center Drive, Miami, Florida (“Building 3”) (“the Warehouse Premises”). Pursuant to the Eighth Amendment, the Original Office Premises was remeasured. Accordingly, as of the Extension Commencement Date (i.e., February 1, 2023), Tenant’s leased rentable square footage will be increased by 5,294 rentable square feet of space in Building 11 and by 2,053 rentable square feet of space in Building 10. Additionally, on January 31, 2023, Tenant’s lease of the Warehouse Premises shall expire. Therefore, as of the Extension Commencement Date, the total rentable square footage for the Original Office Premises shall be 206,078 rentable square feet of space. Further, as of the Expansion Commencement Date, Tenant shall lease from Landlord 65,862 rentable square feet of space located in 7300 Corporate Center Drive, Miami, Florida (“Building 8”) and an additional 4,434 rentable square feet of space in Building 10. The Original Office Premises and Building 8 premises (but not including the Expansion Premises set forth in this Amendment) are collectively referred to herein as the “Total Premises”. Upon the Extension Commencement Date, the Total Premises shall be comprised of approximately 276,374 rentable square feet of space (of which 131,100 rentable square feet of space are located in Building 11, 79,412 rentable square feet of space are located in Building 10, and 65,862 rentable square feet of space are located in Building 8), plus the Expansion Premises set forth in this Amendment; and
WHEREAS, Landlord and Tenant desire to enter into this Amendment to expand the Total Premises and provide for certain other matters as more fully set forth herein;
NOW, THEREFORE, in consideration of the foregoing and the mutual covenants contained herein, the parties agree that the Lease shall be amended in accordance with the terms and conditions set forth below.
1. Definitions. The capitalized terms used herein shall have the same definitions as set forth in
| 1 |
the Lease, unless otherwise defined herein.
2. Expansion.
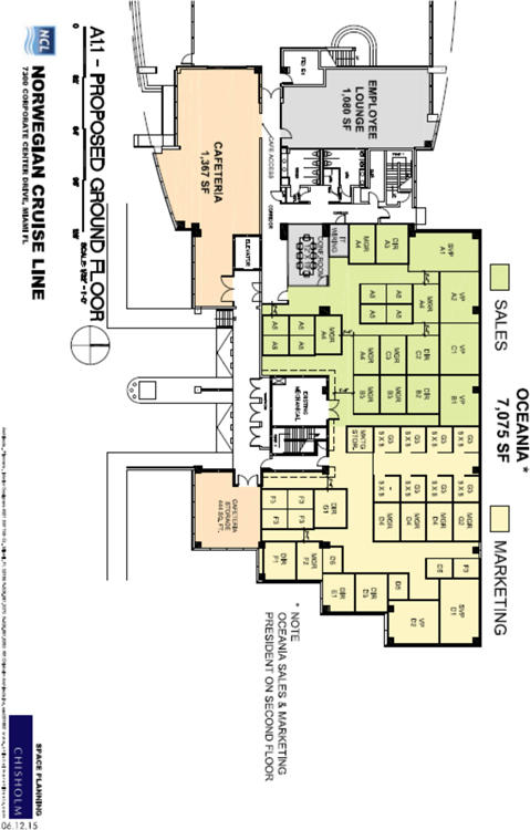
(a) Expansion Premises. The term “Expansion Premises” is hereby defined to be and to mean the majority of the first (1st) Floor, in Building 8, consisting of approximately 28,396 total rentable square feet of space (which is the final agreement of the parties and not subject to adjustment), as outlined on Exhibit A, attached hereto and incorporated herein by this reference. The Expansion Premises shall be delivered in the following manner:
| Space | RSF | Estimated Delivery Date | Commencement Date | |||
| Suites 102 & 112 | 19,287 | The earlier to occur of (i) July 1, 2015, or (ii) the mutual execution of this Amendment. | Four (4) months after the Delivery Date. | |||
| Suite 100 | 4,509 | Tenant shall submit to Landlord a preliminary construction schedule with a projected commencement date.* | Four (4) months after the Delivery Date. | |||
| Suite 111 | 4,600 | July 1, 2015 | November 1, 2015 (i.e., four (4) months after the Delivery Date. |
* Subject to Tenant providing Landlord with a preliminary construction schedule including a projected commencement date for construction of Suite 100, Landlord shall relocate its existing management offices in order to accommodate said schedule.
Promptly following delivery of any portion of the Expansion Premises, the parties shall execute and deliver to one another a Confirmation of Lease Terms and Dates confirming such dates, substantially in the form attached hereto as Exhibit C, each being an “Actual Delivery Date”.
(b) Expansion Commencement Date. The term “Expansion Commencement Date” with respect to each portion of the Expansion Premises shall mean the date which is four (4) months after Landlord delivers possession of each portion of the Expansion Premises to Tenant. Effective as of each applicable Expansion Commencement Date, the defined term “Leased Premises” under the Lease shall include the Total Premises and the applicable portion of the Expansion Premises, except in accordance with the Eighth Amendment, the expiration date of the Lease Term for the Warehouse Premises shall not be extended by this Amendment and shall remain to expire on January 31, 2023.
(c) Expansion Expiration Date. Tenant’s lease of the Expansion Premises shall expire coterminous with the Lease on January 31, 2028 (“Expansion Expiration Date”).
(d) Expansion Term. The term “Expansion Term” is hereby defined to be and to mean that period of time commencing on the applicable Expansion Commencement Date and expiring on the Expansion Expiration Date.
(e) Acceptance. Effective on each applicable Expansion Commencement Date,
| 2 |
Landlord hereby leases to Tenant and Tenant hereby leases from Landlord, on the terms and conditions set forth in the Lease and herein, that portion of the Expansion Premises. Tenant shall accept the Expansion Premises in its present “as is” condition as of the Effective Date of this Amendment. Tenant shall install the work set forth in the Work Letter, attached hereto as Exhibit B and incorporated herein by this reference.
(f) Notwithstanding anything herein to the contrary, if, in order for Tenant to receive a building permit for Tenant Improvements (as defined in Exhibit B) or a certificate of occupancy or completion for the Tenant Improvements, any portion of the existing building systems located outside of and serving any portion of the Expansion Premises or any portion of the existing common areas located on any floors containing any portion of the Expansion Premises are required by applicable governmental authority, to be made compliant with the currently applicable building code or fire code or applicable requirements of the Americans with Disabilities Act (“ADA”), then Landlord agrees that it is Landlord’s responsibility, at its cost, to perform the necessary work to make said portion of the existing building systems and/or existing common areas compliant; however, Tenant acknowledges and agrees that Landlord is only responsible for the building systems up to the point of common connection for the floor on which the applicable portion of the Expansion Premises are located and under no circumstances shall Landlord be required to upgrade restrooms on the first (1st) Floor of Building 8 to meet ADA requirements.
3. Base Rental for the Expansion Premises. During the Expansion Term, Tenant shall pay to Landlord Base Rental (as defined in Section 2.1 of the Original Lease) for the Expansion Premises in full and without offset or demand except as otherwise set forth in the Lease, provided that such Base Rental shall be payable in monthly installments as follows:
| Dates | Annual Rate/RSF* | Monthly Installment | ||||||
| Expansion Commencement Date – 08/31/16* | $ | [*] | $ | [*] | * | |||
| 09/01/16 – 08/31/17 | $ | [*] | $ | [*] | ||||
| 09/01/17 – 08/31/18 | $ | [*] | $ | [*] | ||||
| 09/01/18 – 08/31/19 | $ | [*] | $ | [*] | ||||
| 09/01/19 – 08/31/20 | $ | [*] | $ | [*] | ||||
| 09/01/20 – 08/31/21 | $ | [*] | $ | [*] | ||||
| 09/01/21 – 08/31/22 | $ | [*] | $ | [*] | ||||
| 09/01/22 – 08/31/23 | $ | [*] | $ | [*] | ||||
| 09/01/23 – 08/31/24 | $ | [*] | $ | [*] | ||||
| 09/01/24 – 08/31/25 | $ | [*] | $ | [*] | ||||
| 09/01/25 – 08/31/26 | $ | [*] | $ | [*] | ||||
| 09/01/26 – 08/31/27 | $ | [*] | $ | [*] | ||||
| 09/01/27 – Expansion Expiration Date (01/31/28) | $ | [*] | $ | [*] | ||||
* The rate per square foot will be applicable to each portion of the Expansion Premises (Suites 102 and 112, 100 and 111); however, the monthly installment will fluctuate based on which portion of the Expansion Premises is included at that time. Each portion of the Expansion Premises shall be entitled to four (4) months of build out time following the applicable Actual Delivery Date, as more fully set forth in Section 2(a) above. Additionally, Tenant shall receive twelve (12) full calendar months of abated Base Rental for each portion of the Expansion Premises, commencing on the applicable Expansion Commencement Date of each portion of the Expansion Premises (i.e., four (4) months following the applicable Actual Delivery Date of each portion of the Expansion Premises). If the applicable Expansion Commencement Date is other than the first day of a calendar month, then the first and last months of the applicable abatement period shall be prorated. Such abatement shall apply solely to payment of the
| 3 |
monthly installments of Base Rental and shall not be applicable to any other charges, expenses or costs payable by Tenant under the Lease or this Amendment, including, without limitation, Tenant’s obligation to pay Additional Rental and its utilities. In the event that Tenant defaults under the terms and conditions of the Lease or this Amendment beyond any applicable notice and cure period resulting in the loss of Tenant’s right to possess the Premises, Landlord shall have a claim for the unamortized portion of all conditionally abated rental (without limitation and in addition to any and all other rights and remedies available to Landlord provided herein or at law and in equity).
Except as otherwise expressly set forth herein, Base Rental shall be payable pursuant to the terms and conditions of Article 2 of the Original Lease. Tenant shall be solely liable for any and all tax on rental.
4. Tenant's Percentage Share and Operating Expenses. Beginning on the Expansion Commencement Date of each applicable portion of the Expansion Premises, Tenant's Percentage Share, as defined in Section 2.3(c) of the Original Lease, shall be increased based upon an amount determined by (a) the fraction, the numerator of which is the total number of Rentable Square Feet then leased by Tenant in Building 8, and the denominator of which is the greater of (i) ninety-five percent (95%) of the total Rentable Square Feet in Building 8; or (ii) the total Rentable Square feet in Building 8 actually leased or occupied by tenants. Operating Expenses for calendar year 2015 are presently estimated to be $12.01 per rentable square foot of space in the Expansion Premises.
5. Tenant's Parking Spaces for Building 8. Tenant shall have the right to use an increased number of parking spaces based on the new rentable area of the Expansion Premises, pursuant to the same terms and conditions as Section 8 of the Eighth Amendment, except that upon on the Expansion Commencement Date, Tenant shall also receive an additional fourteen (14) parking permits for the Building 8 parking garage, at no additional cost to Tenant, as shown on Exhibit D, attached hereto and incorporated herein by this reference.
6. Signs. Tenant shall have signage rights to the Building 8 Façade Sign and the Building 8 Monument Sign, including the right to install and maintain signage using any, a combination of any, or all of Tenant’s and its related companies’ brand names including, but not limited to, Norwegian, Oceania, Regent, and any others pursuant to the same terms and conditions of Section 9 of the Eighth Amendment.
7. Waiver of Previous Options. Landlord and Tenant hereby acknowledge and agree that Tenant expressly waives the Building 8 right of offer with respect to the fourth (4th) Floor of the Building, as more particularly set forth in Section 12(a) of the Eighth Amendment.
| 4 |
8. Brokers. Tenant hereby represents and warrants to Landlord that Tenant has not dealt with any real estate brokers or leasing agents, except Flagler Brokerage and Management Services, LLC, in association with Travers Realty Corporation, d/b/a Travers Cresa, who represent Tenant, and Landlord hereby represents and warrants to Tenant that CBRE, Inc., is the sole real estate broker or leasing agent representing Landlord (collectively, the “Brokers”). Landlord and Tenant hereby agree to indemnify and to hold each other harmless against any loss, expense, or liability with respect to any claims for commissions or brokerage fees arising from or out of any breach of the foregoing representation and warranty. Landlord shall pay all brokerage commissions due to the Brokers pursuant to a separate agreement. Landlord, Tenant and Broker acknowledge and agree that from the sale of the Office Park in October 2014, Landlord has held in escrow [*]. Landlord shall release said funds held in escrow to Flagler Brokerage and Management Services, LLC and Travers Realty Corporation, d/b/a Travers Cresa within thirty (30) days of the mutual execution of this Amendment.
9. Miscellaneous. With the exception of those matters set forth in this Amendment, Tenant's leasing of the Leased Premises (including the Expansion Premises set forth herein) shall be subject to all terms, covenants and conditions of the Lease. In the event of any express conflict or inconsistency between the terms of this Amendment and the terms of the Lease, the terms of this Amendment shall control and govern. Except as expressly modified by this Amendment, all other terms and conditions of the Lease are hereby ratified and affirmed. This Amendment may be executed in any number of counterparts, and delivery of any counterpart to the other party may occur by electronic or facsimile transmission; each such counterpart shall be deemed an original instrument, but all such counterparts together shall constitute one agreement. An executed Amendment containing the signatures (whether original, faxed or electronic) of all the parties, in any number of counterparts, is binding on the parties. The “Effective Date” of this Amendment will be the date on which the last party shall have executed and delivered a fully executed Amendment to the other party. The parties acknowledge that the Lease is a valid and enforceable agreement and that neither party has any demands, claims (matured or unmatured), losses, rights of set off or deduction asserted or assertable against the other party in any manner relating to the Lease, or arising in connection with the Leased Premises or the Project.
[Remainder of Page Intentionally Left Blank]
| 5 |
IN WITNESS WHEREOF, this Amendment is dated effective as of the date and year first written above.
| WITNESS: | LANDLORD: | |||
| SPUS7 MIAMI ACC, LP, | ||||
| a Delaware limited partnership | ||||
| By: | /s/ Diana Parker | By: | /s/ Claudia Walraven | |
| Name: | Diana Parker | Name: | Claudia Walraven | |
| Title: | Asst. V.P. | |||
| By: | /s/ Richard Bamonte | Date: | 6.30.15 | |
| Name: | Richard Bamonte | |||
| By: | /s/ Andy Olvera | By: | /s/ Mark Zikakis | |
| Name: | Andy Olvera | Name: | Mark Zikakis | |
| Title: | Vice President | |||
| By: | /s/ Lindsay Louie | Date: | 6.30.15 | |
| Name: | Lindsay Louie | |||
| WITNESS: | TENANT: | |||
| NCL (BAHAMAS) LTD., | ||||
| a Bermuda company, d/b/a Norwegian Cruise Line | ||||
| By: | /s/ Victor M. Gonzalez | By: | /s/ Frank Del Rio | |
| Name: | Victor M. Gonzalez | Name: | Frank Del Rio | |
| Title: | Chief Executive Officer | |||
| By: | /s/ Lincoln M. Vidal | Date: | 6/26/15 | |
| Name: | Lincoln M. Vidal | |||
CONSENT OF GUARANTOR
The undersigned Guarantor under the original Guaranty of Lease dated November 27, 2006 (the “Guaranty”), does hereby consent to the foregoing Amendment. Guarantor acknowledges and agrees that the Guaranty is in full force and effect and shall continue to apply to the Lease, as amended by this Amendment.
NCL CORPORATION LTD.,
a Bermuda company
| By: | /s/ Frank Del Rio | |
| Name: | Frank Del Rio | |
| Title: | President & CEO |
| 6 |
EXHIBIT A
EXPANSION PREMISES

| 7 |
EXHIBIT B
WORK LETTER
This is the Work Letter referred to in and specifically made a part of the Amendment to which this Exhibit B is annexed, covering the entire Leased Premises, including the Expansion Premises, as more particularly described in the Amendment. Landlord and Tenant agree as follows:
1. Defined Terms. The following defined terms shall have the meaning set forth below and, unless provided to the contrary herein, the remaining defined terms shall have the meaning set forth in the Lease, as amended:
| Landlord's Representative: | Suzanne Russo of CBRE, Inc. Landlord has designated Landlord's Representative as its sole representative with respect to the matters set forth in this Work Letter, who shall have full authority and responsibility to act on behalf of Landlord as required in this Work Letter. Landlord shall not change Landlord's Representative except upon prior written notice to Tenant. Tenant acknowledges that neither Tenant's architect nor any contractor engaged by Tenant is Landlord's agent and neither entity has authority to enter into agreements on Landlord's behalf or otherwise bind Landlord. |
| Tenant's Representative: | Victor Gonzalez of Norwegian Cruise Line, or such other person as may be designated in writing by Tenant. Tenant has designated Tenant's Representative as its representative with respect to the matters set forth in this Work Letter, who shall have full authority and responsibility to act on behalf of Tenant as required in this Work Letter. Tenant shall not change Tenant's Representative except upon prior written notice to Landlord. |
| Allowance: | [*] (i.e., [*] per rentable square foot of space in the Expansion Premises (the "Tenant Improvement Allowance") to be used for, among other things, permitting, design, construction, interior improvements, cabling and relocation expenses in the Expansion Premises. Up [*] of the Tenant Improvement Allowance may be used towards Tenant’s soft costs (including, but not limited to, furniture fixtures, equipment and Base Rental). |
| Additional Allowance: | An additional [*] (the "Additional Allowance") may be used for the purchase, use, and maintenance of golf carts and/or Tenant may apply the Additional Allowance towards Tenant’s Base Rental obligations. Tenant shall be solely responsible for the purchase, use and maintenance of any golf carts. Any golf carts shall be stored in garage associated with Building 11 after-hours. |
| Construction Management Fee: | None. |
| 8 |
| General Contractor: | City Construction Group (which is hereby approved by Landlord), or such other general contractor approved by Landlord, which approval shall not be unreasonably withheld, conditioned or delayed. |
2. Landlord’s Work. Subject to Section 2(e) of the Amendment, Tenant accepts the Expansion Premises in its current “AS IS” condition and acknowledges that Landlord shall have no obligation to do any work in or on the Expansion Premises to render it ready for Tenant's use or occupancy. Landlord will be constructing a lunchroom in Suite 101 of Building 8 (which is not part of the Leased Premises) which shall be accessible to Tenant and shared by other tenants and employees in Building 8. Landlord and Tenant hereby acknowledge and agree that with respect to the west half of the floor, the existing hallway providing access to the Lunchroom and adjacent bathrooms shall remain a common area hallway with full access by all tenants and visitors to the Building. Landlord shall cause to be prepared detailed architectural, mechanical and engineering plans, including all dimensions and specifications for all work to be performed by Landlord in Suite 101. Tenant shall cooperate as necessary regarding Tenant’s use of adjoining common areas so as to allow access by Landlord through the common areas to perform Landlord’s Work in Suite 101.
3. Tenant Improvements. The “Tenant Improvements” shall mean the interior walls, partitions, doors, door hardware, wall coverings, wall base, counters, lighting fixtures, electrical and telephone wiring, cabling for computers, electrical outlets, ceilings, floor and window coverings, that portion of the HVAC system located within any portion of the Expansion Premises, that portion of the fire sprinklers system located within any portion of the Leased Premises (including the Expansion Premises), and other items of general applicability that Tenant desires to be installed in the interior of the Expansion Premises. Tenant Improvements shall also include the construction of a café on the first (1st) Floor of the Expansion Premises. Landlord acknowledges Tenant’s intent to design and operate the café solely for use by Tenant’s employees and invited guests. Tenant hereby acknowledges and agrees the café will not receive exposure in Building 8’s main lobby and the entrance to the café shall be located as shown on attached Exhibit E. With respect to the existing main lobby glass doors and side panels, Tenant hereby acknowledges and agrees that said doors and side panels shall be frosted and shall not be a means of ingress and egress to the café. Tenant shall promptly commence and diligently prosecute to full completion Tenant Improvements in accordance with the Drawings (defined below). Tenant shall have four (4) months from each applicable Delivery Date for construction of the Expansion Premises. The parties agree that no demolition work or other Tenant Improvements shall be commenced within the Expansion Premises until such time as Tenant has provided to Landlord copies of the building permits required to be obtained from all applicable governmental authorities. All materials, work, installations, equipment and decorations of any nature whatsoever brought on or installed in the Expansion Premises before the applicable Expansion Commencement Date or during the Expansion Term shall be at Tenant's risk, and neither Landlord nor any party acting on Landlord's behalf shall be responsible for any damage thereto or loss or destruction thereof due to any reason or cause whatsoever, excluding by reason of Landlord's negligence or willful or criminal misconduct. Notwithstanding anything set forth in this Amendment to the contrary, Tenant shall have the right, in its sole discretion, to apply all or any portion of the Tenant Improvement Allowance to performing Alterations (as defined in and pursuant to Section 5(e) of the Original Lease) to the Expansion Premises.
4. Drawings. Tenant shall engage and pay for the services of a licensed architect to prepare a space layout, drawings and specifications for all Tenant Improvements (the “Drawings”), which architect shall be subject to Landlord's approval, not to be unreasonably withheld, conditioned or delayed (the
| 9 |
“Architect”). Tenant shall devote such time in consultation with the Architect as shall be necessary to enable the Architect to develop complete and detailed architectural, mechanical and engineering drawings and specifications, as necessary, for the construction of Tenant Improvements, showing thereon all Tenant Improvements. Tenant hereby acknowledges and agrees that it is Tenant's sole and exclusive responsibility to cause the Premises and the Drawings to comply with all applicable laws, including the Americans with Disabilities Act and other ordinances, orders, rules, regulations and requirements of all governmental authorities having jurisdiction thereof.
5. Landlord's Approval. On or before the applicable Time Limit set forth below, Tenant shall submit to Landlord an electronic PDF copy, electronic CAD copy and hard copy of the complete and final Drawings for Tenant Improvements. The Drawings shall be subject to the approval of Landlord, which approval shall not be unreasonably withheld, conditioned or delayed. If Landlord should disapprove such Drawings, Landlord shall specify to Tenant, in writing, the reasons for its disapproval and Tenant shall cause the same to be revised to meet the Landlord and Tenant's mutual reasonable satisfaction and shall resubmit the same to Landlord, as so revised, on or before the applicable Time Limit set forth below.
6. Changes. Tenant may request reasonable changes in the Drawings; provided, however, that (a) no change shall be made to the Drawings without Landlord's Representative's prior written approval, which approval shall not be unreasonably withheld, conditioned or delayed; (b) no such request shall effect any structural change in Building 8 or otherwise render any portion of the Expansion Premises or the building within which such portion is situated in violation of applicable laws; (c) Tenant shall pay any additional costs required to implement such change, including, without limitation, architecture and other consultant fees, and increases in construction costs; and (d) such requests shall constitute an agreement by Tenant to any delay in completion caused by Landlord's reviewing, and processing such change. If Tenant requests or causes any change, addition or deletion to the Premises to be necessary after approval of the Drawings, a request for the change shall be submitted to Landlord's Representative, accompanied by revised plans prepared by the Architect, all at Tenant's sole expense.
7. Tenant's Contractors. It is understood and agreed by the parties that, as hereinafter set forth, Tenant has elected to retain a general contractor and arrange for the construction and installation of Tenant Improvements itself in a good and workmanlike manner by contractors and subcontractors.” On or before the applicable Time Limit set forth below, Tenant shall submit to Landlord the names of the general contractor, electrical, ventilation, plumbing and heating subcontractors (hereinafter “Major Subcontractors”), as applicable, for Landlord's approval, which approval shall not be unreasonably withheld, conditioned or delayed. If Landlord shall reject any Major Subcontractor, Landlord shall advise Tenant, in writing, of the reason(s) and Tenant shall choose another Major Subcontractor. Along with Tenant's notice of its Major Subcontractors, Tenant shall notify Landlord of its estimate of the total costs for Tenant Improvements.
8. Tenant's Construction of Tenant Improvements.
(a) Payment; Liens. Tenant shall promptly pay any and all costs and expenses in connection with or arising out of the performance of Tenant Improvements and shall furnish to Landlord evidence of such payment upon request. In the event any lien is filed against the building within which any Tenant Improvements are performed by Tenant as set forth herein, or against Tenant's leasehold interest therein, the provisions of Article 5(g) of the Original Lease shall apply.
(b) Indemnity. Tenant shall indemnify, defend (with counsel reasonably satisfactory to
| 10 |
Landlord and Tenant) and hold Landlord harmless from and against any and all suits, claims, actions, loss, cost or expense (including claims for workers' compensation, attorneys' fees and costs) based on personal injury, property damage or contract claims (including, but not limited to claims for breach of warranty) arising from Tenant Improvements. Tenant shall repair or replace (or, at Landlord's election, reimburse Landlord for the commercially reasonable cost of repairing or replacing) any portion of the building within which any Tenant Improvements are performed by Tenant as set forth herein, or item of Landlord's equipment or any of Landlord's real or personal property damaged, lost or destroyed by Tenant's contractors during construction of Tenant Improvements.
(c) Contractors. The Major Subcontractors employed by Tenant and any subcontractors thereof shall be (i) duly licensed in the state in which the Premises are located, and (ii) except as otherwise approved herein, subject to Landlord's prior written approval, which approval shall not be unreasonably withheld, conditioned or delayed. On or before ten (10) business days prior to the commencement of any construction activity in the applicable portion of the Expansion Premises, Tenant and Tenant's contractors shall obtain and provide Landlord with certificates evidencing Workers' Compensation, public liability and property damage insurance in amounts and forms and with companies reasonably satisfactory to Landlord. If Landlord should disapprove such insurance, Landlord shall specify to Tenant the reasons for its disapproval within five (5) business days after delivery of such certificates. Tenant's agreement with its contractors shall require such contractors to provide daily clean up of the construction area to the extent such clean up is necessitated by the construction of Tenant Improvements, and to take reasonable steps to minimize interference with other tenants' use and occupancy of the Building. Nothing contained herein shall make or constitute Tenant as the agent of Landlord. Tenant and Tenant's contractors shall comply with any other reasonable rules, regulations or requirements that Landlord may impose. Notwithstanding anything to the contrary, Tenant’s contractors shall not be charged for the use of parking, utilities, elevators use or security costs. To the extent reasonably required by Tenant during construction of Tenant Improvements, Landlord shall use commercially reasonable efforts to provide Tenant with space for a storage container, the exact location and size of which shall be subject to Landlord’s reasonable approval and discretion. Tenant shall be responsible to ensure that the storage container satisfies all applicable laws. The storage container may only be used for temporarily storing building materials or equipment which will be incorporated into the Expansion Premises. All of the foregoing shall be maintained by Tenant in a neat and orderly manner and shall not affect other tenants in the Project. Tenant shall be solely responsible for all costs in connection with the foregoing and the same shall only be in place for a reasonable period of time as necessary to facilitate the Tenant Improvements.
(d) Use of Common Areas. During the construction period and installation of fixtures period, Tenant shall be allowed to use, at no cost to Tenant, a freight elevator for the purpose of hoisting materials, equipment and personnel to the Premises. Also during the construction period, Tenant shall ensure that the Building and all common areas and the Expansion Premises are kept in a clean and safe condition at all times. Further, all construction activities shall be conducted so as to use reasonable efforts to minimize interference with the use and occupancy of the Building by the tenants thereof. Such entry shall be deemed to be under all the terms, covenants, provisions and conditions of the Lease, as amended.
(e) Coordination. All work performed by Tenant shall be coordinated with Landlord’s Representative. Tenant shall use commercially reasonable efforts to timely notify and invite Landlord’s Representative to construction meetings (with contractors, engineers, architects and others), and supply all documentation reasonably requested by Landlord’s Representative.
| 11 |
(f) Assumption of Risk. All materials, work, installations, equipment and decorations of any nature whatsoever brought on or installed in the Premises pursuant to the provisions of this Work Letter before the commencement of the Term or throughout the Term shall be at Tenant's risk, and neither Landlord nor any party acting on Landlord's behalf shall be responsible for any damage thereto or loss or destruction thereof due to any reason or cause whatsoever, excluding by reason of Landlord or such other party's gross negligence or willful or criminal misconduct.
9. Time Limits. The following maximum time limits and periods shall be allowed for the indicated matters:
| Action | Time Limit | |
| Tenant submits Drawings to Landlord for review and approval. | On or before 60 days after the date of mutual execution of this Amendment. | |
| Landlord notifies Tenant and the Architect of its approval of the Drawings with any required changes in detail. | On or before 10 business days after the date of Landlord's receipt of the Drawings. | |
| Tenant notifies Landlord of its selection of major subcontractors. | On or before 60 days after the date of mutual execution of this Amendment. | |
| Landlord approves/disapproves Tenant's major subcontractors. | On or before 7 business days after the date of Landlord's receipt of the list of major subcontractors. | |
| If applicable, Landlord and Tenant mutually approve the final revised list of major subcontractors. | On or before 3 business days after the date of Landlord's receipt of a revised list of major subcontractors. | |
| If applicable, Landlord and Tenant mutually approve the final revised Drawings. | On or before 5 business days after the date of Landlord's receipt of revised Drawings. | |
| Tenant submits Drawings for building permit, if applicable. | On or after the date Tenant and Landlord mutually approve the final, revised Drawings. | |
| Tenant allowed access to the applicable portion of the Expansion Premises to commence Construction of Tenant Improvements | After providing copies of the building permit(s) and the contractors meeting all of Landlord’s insurance requirements. |
Except as may be otherwise specifically provided for herein, in all instances where either Tenant's or Landlord's approval is required, if no written notice of disapproval is given within the applicable Time Limit, at the end of such period the applicable party shall be deemed to have given its approval and the next succeeding time period shall commence. Any delay in any of the foregoing dates (including any
| 12 |
“re-do”, continuation or abatement of any item due to Tenant's or Landlord's disapproval thereof) shall automatically delay all subsequent deadlines by a like amount of time.
10. Tenant Improvement Allowance. Landlord shall contribute to the costs and expenses of all costs for the planning and design of Tenant Improvements, including all permits, licenses and construction fees and constructing Tenant Work in an amount not to exceed the Tenant Improvement Allowance. If the final costs for Tenant Improvements exceed Tenant Improvement Allowance, Tenant shall be responsible for such excess costs. If the total cost of performing Tenant Improvements is less than the Tenant Improvement Allowance, portions of the Tenant Improvement Allowance may be used towards Tenant's soft costs and existing Lease obligations in accordance with Section 1 of this Work Letter. Landlord shall pay the Tenant Improvement Allowance to Tenant consistent with the terms and conditions of this Section. After Tenant Improvements are complete (as provided under Section 11 hereof), Tenant may submit to Landlord a request in writing (the “Final Draw Request”) for the Tenant Improvement Allowance which request shall include: (a) “as-built“ drawings showing all of Tenant Improvements, (b) a detailed breakdown of Tenant's final and total construction costs, together with receipted invoices showing payment thereof, (c) a certified, written statement from the Architect that all of Tenant Improvements has been completed in accordance with the Drawings, (d) all required AIA forms, supporting final lien waivers, and releases executed by the Architect, General Contractor, the Major Subcontractors and all subcontractors and suppliers in connection with Tenant Improvements, (e) a copy of a certificate of occupancy or amended certificate of occupancy required with respect to the Expansion Premises, if applicable, together with all licenses, certificates, permits and other government authorizations necessary in connection with Tenant Improvements and the operation of Tenant's business from the Expansion Premises, and (f) proof reasonably satisfactory to Landlord that Tenant has complied with all of the conditions set forth in this Work Letter and has satisfactorily completed Tenant Improvements.” Upon Landlord's receipt and approval of the Final Draw Request, Landlord shall pay the balance of the Tenant Improvement Allowance. Payment by Landlord shall be made within thirty (30) days, unless Landlord notifies Tenant, in writing, of its rejection (and the reasons therefor) of any or all of the Final Draw Request. To the extent Landlord does not so reject any portion of said Final Draw Request, Landlord shall timely pay the Final Draw Request. Notwithstanding the foregoing to the contrary, but subject to Section 1 of this Work Letter, Landlord will pay the amount of the Tenant Improvement Allowance to Tenant in progress payments (not more often than monthly) after the applicable Actual Delivery Dates. Such progress payments will be made not later than thirty (30) days after receipt by Landlord from Tenant of copies of Tenant’s invoices from its Architect or General Contractor together with a certificate from Tenant indicating that the work to which such invoices relate has been substantially completed and/or the materials to which such invoices relate have been installed in, or delivered to, the applicable portion of the Expansion Premises. Such progress payments will be made payable to Tenant and will be for the undisputed amount of the submitted invoices, less a ten percent (10%) retainage (which shall not be released until such time as Landlord has received the Final Draw Request). As a condition precedent to Landlord’s issuing any such progress payment subsequent to the first such progress payment, Tenant will deliver to Landlord an original lien waiver from its general contractor waiving any claim for a mechanic’s or materialman’s lien with respect to the labor and materials reflected in the invoices submitted for the immediately preceding progress payment.
11. Substantial Completion. Tenant Improvements shall be deemed substantially complete when all work called for by the Drawings has been finished and the applicable portion of the Expansion Premises is ready to be used and occupied by Tenant, even though minor items may remain to be installed, finished or corrected (“Substantial Completion Date” or the “Date of Substantial Completion”). Tenant shall cause the contractors to diligently complete any items of work not completed when the applicable portion
| 13 |
of the Expansion Premises are substantially complete. Substantial completion shall have occurred notwithstanding punch list items. Promptly after the Substantial Completion Date for any portion of the Expansion Premises, the parties will execute an instrument in the form attached hereto as Exhibit C, setting forth the applicable Expansion Commencement Date, so that said date is certain and such instrument, when executed, is hereby made a part of this Amendment and incorporated herein by reference.
12. No Representations or Warranties. Notwithstanding anything to the contrary contained in the Lease, as amended, or herein, Landlord's participation in the preparation of the Drawings, the cost estimates for Tenant and the construction of Tenant Improvements shall not constitute any representation or warranty, express or implied, that (i) the Drawings are in conformity with applicable governmental codes, regulations or rules or (ii) Tenant Improvements, if built in accordance with the Drawings, will be suitable for Tenant's intended purpose. Landlord's obligations shall be to review the Drawings; and any additional cost or expense required for the modification thereof to more adequately meet Tenant's use, whether during or after construction thereof, shall be borne entirely by Tenant.
[REMAINDER OF PAGE INTENTIONALLY LEFT BLANK]
| 14 |
EXHIBIT C
CONFIRMATION OF LEASE TERMS AND DATES
| Re: | Ninth Amendment to Lease (the “Amendment”) dated June 30, 2015, between SPUS7 MIAMI ACC, LP, a Delaware limited partnership (“Landlord”), and NCL (BAHAMAS) LTD., a Bermuda company, d/b/a Norwegian Cruise Line (“Tenant”) for the premises located at Building 8, 7300 Corporate Center Drive, Miami, Florida (“Expansion Premises”). |
The undersigned, as Tenant, hereby confirms as of this _____ day of _________, 2015, the following:
1. The Actual Delivery Date of each of the following portions of the Expansion Premises is as follows:
| Space | RSF | Actual Delivery Date | ||
| Suites 102 and 112 | 19,287 | ______________, 2015 | ||
| Suite 100 | 4,509 | ______________, 2015 | ||
| Suite 111 | 4,600 | ______________, 2015 |
2. The Expiration Date is January 31, 2028.
3. The schedule of Base Rental is:
| Dates | Annual Rate/RSF | Monthly Installment | ||
| __/__/__ - __/__/__ | $____________ | $________________* | ||
| __/__/__ - __/__/__ | $____________ | $________________ | ||
| __/__/__ - __/__/__ | $____________ | $________________ | ||
| __/__/__ - __/__/__ | $____________ | $________________ | ||
| __/__/__ - __/__/__ | $____________ | $________________ | ||
| __/__/__ - __/__/__ | $____________ | $________________ | ||
| __/__/__ - __/__/__ | $____________ | $________________ | ||
| __/__/__ - __/__/__ | $____________ | $________________ | ||
| __/__/__ - __/__/__ | $____________ | $________________ | ||
| __/__/__ - __/__/__ | $____________ | $________________ | ||
| __/__/__ - __/__/__ | $____________ | $________________ | ||
| __/__/__ - __/__/__ | $____________ | $________________ | ||
| __/__/__ - __/__/__ | $____________ | $________________ | ||
| __/__/__ - __/__/__ | $____________ | $________________ | ||
| __/__/__ - __/__/__ | $____________ | $________________ | ||
| __/__/__ - __/__/__ | $____________ | $________________ | ||
| __/__/__ - __/__/__ | $____________ | $________________ | ||
| __/__/__ - __/__/__ | $____________ | $________________ | ||
| __/__/__ - __/__/__ | $____________ | $________________ | ||
| __/__/__ - __/__/__ | $____________ | $________________ | ||
| __/__/__ - 01/31/28 | $____________ | $________________ |
| 15 |
*Subject to the 12-full calendar month base rental abatement set forth in the Amendment.
4. Tenant has the right to use ____ parking spaces associated with the Expansion Premises. Of which, _____ are located in the covered portion of the parking garage adjacent to Building 8, _____ are uncovered parking spaces in the parking lot associated with Building 8 and ____ are located at ____________________________________.
5. All alterations and improvements required to be performed by Landlord pursuant to the terms of the Amendment to prepare the Expansion Premises for Tenant's initial occupancy have been satisfactorily completed. There are no offsets or credits against Rent or other amounts owed by Tenant to Landlord, except: ____________________________________________________. As of the Effective Date, Landlord has fulfilled all of its obligations under the Lease, as amended. The Lease, as amended, is in full force and effect and has not been modified, altered, or amended. There are no defaults by Landlord.
| TENANT: | ||
| NCL (BAHAMAS) LTD., | ||
| a Bermuda company, d/b/a Norwegian Cruise Line | ||
| By: | ||
| Name: | ||
| Title: | ||
| 16 |
EXHIBIT D
PARKING

| 17 |
EXHIBIT E
LOCATION OF ENTRANCE TO café

| 18 |