Exhibit 10.5
[*]: THE CONFIDENTIAL PORTION HAS BEEN OMITTED PURSUANT TO A REQUEST FOR CONFIDENTIAL TREATMENT AND THE OMITTED MATERIAL HAS BEEN FILED SEPARATELY WITH THE COMMISSION.
TENTH AMENDMENT TO LEASE
(Norwegian Cruise Line – The Landing at MIA)
THIS TENTH AMENDMENT TO LEASE ("Amendment") is dated effective and for identification purposes as of March 31, 2016, and is made by and between SPUS7 MIAMI ACC, LP, a Delaware limited partnership ("Landlord"), and NCL (BAHAMAS) LTD., a Bermuda company, d/b/a Norwegian Cruise Line ("Tenant").
RECITALS:
WHEREAS, Landlord’s predecessor-in-interest (Hines REIT Airport Corporate Center LLC) and Tenant entered into that certain Lease Agreement dated December 1, 2006 ("Original Lease"), as amended by that certain First Amendment dated December 1, 2006, Second Amendment dated March 20, 2007, Third Amendment dated July 31, 2007, Letter Agreement dated August 1, 2007, Fourth Amendment dated December 10, 2007, Fifth Amendment dated February 2, 2010, Sixth Amendment dated April 1, 2012, Seventh Amendment dated June 29, 2012, Eighth Amendment dated January 28, 2015, and Ninth Amendment to Lease dated June 30, 2015 (collectively, the "Lease"), pertaining to the premises located in 7665 Corporate Center Drive ("Building 11"), 7650 Corporate Center Drive ("Building 10") (collectively, the "Original Office Premises"), 7245 Corporate Center Drive ("Building 3") ("the Warehouse Premises"), and 7300 Corporate Center Drive, Miami, Florida ("Building 8"); and
WHEREAS, pursuant to the Eighth Amendment, Tenant shall lease (or is leasing) from Landlord approximately 65,862 rentable square feet of space located in Building 8 and an additional 4,434 rentable square feet of space located in Building 10. The Eighth Amendment Expansion Commencement Dates are as follows: for Building 8: (i) September 1, 2015 (2nd Floor except Suite 203 and 3rd Floor except Suites 301, 302, 305, 311, and 312)), (ii) December 1, 2015 (Suite 203), (iii) February 1, 2016 (Suites 302 and 305), and (iv) April 15, 2016 (Suites 301, 311 and 312); for Building 10: September 1, 2015 (Suite 301). Pursuant to the Eighth Amendment, as of April 15, 2016 the Total Premises shall be comprised of approximately 276,094 rentable square feet of space (of which 125,806 rentable square feet of space are located in Building 11, 77,359 rentable square feet of space are located in Building 10, 65,862 rentable square feet of space are located in Building 8, and 7,067 rentable square feet of space are located in Building 3). Further, pursuant to the Eighth Amendment, the Original Office Premises was re-measured. Accordingly, as of the Eighth Amendment Extension Commencement Date (i.e., February 1, 2023), Tenant’s leased rentable square footage will be increased by 5,294 rentable square feet of space in Building 11 and by 2,053 rentable square feet of space in Building 10. Additionally, on January 31, 2023, Tenant’s lease of the Warehouse Premises shall expire. Therefore, as of the Eighth Amendment Extension Commencement Date (i.e. February 1, 2023), the Total Premises (not including the Expansion Premises in Building 8 pursuant to the Ninth Amendment and not including the Expansion Premises pursuant to this Amendment) shall be 276,374 rentable square feet of space; and
WHEREAS, pursuant to the Ninth Amendment, Tenant shall lease from Landlord approximately 28,396 rentable square feet of space (of which 17,434 rentable square feet of space are located in Suite 102, 1,853 rentable square feet of space are located in Suite 112, 4,509 rentable square feet of space are located in Suite 100, and 4,600 rentable square feet of space are located in Suite 111). The Ninth Amendment Expansion Commencement Dates are as follows: (i) November 1, 2015 (Suite 102), (ii) March 4, 2016 (Suite 112), (iii) March 4, 2016 (Suite 100), and (iv) November 1, 2015 (Suite 111). Accordingly, as of
April 15, 2016 (i.e., the latest to occur Expansion Commencement Date of the Eighth Amendment), the Total Premises including the Warehouse Premises, as expanded shall be comprised of approximately 304,490 rentable square feet of space (of which 125,806 rentable square feet of space are located in Building 11, 77,359 rentable square feet of space are located in Building 10, 94,258 rentable square feet of space are located in Building 8, and 7,067 rentable square feet of space are located in Building 3); and
WHEREAS, upon the Eighth Amendment Extension Commencement Date (i.e., February 1, 2023), the Total Premises (as re-measured and expanded) shall be comprised of approximately 304,770 rentable square feet of space (of which 131,100 rentable square feet of space are located in Building 11, 79,412 rentable square feet of space are located in Building 10, and 94,258 rentable square feet of space are located in Building 8), plus the Expansion Premises set forth in this Amendment; and
WHEREAS, Landlord and Tenant desire to enter into this Amendment to expand the Total Premises and provide for certain other matters as more fully set forth herein.
NOW, THEREFORE, in consideration of the foregoing and the mutual covenants contained herein, the parties agree that the Lease shall be amended in accordance with the terms and conditions set forth below.
1. Definitions. The capitalized terms used herein shall have the same definitions as set forth in the Lease, unless otherwise defined herein.
2. Expansion.
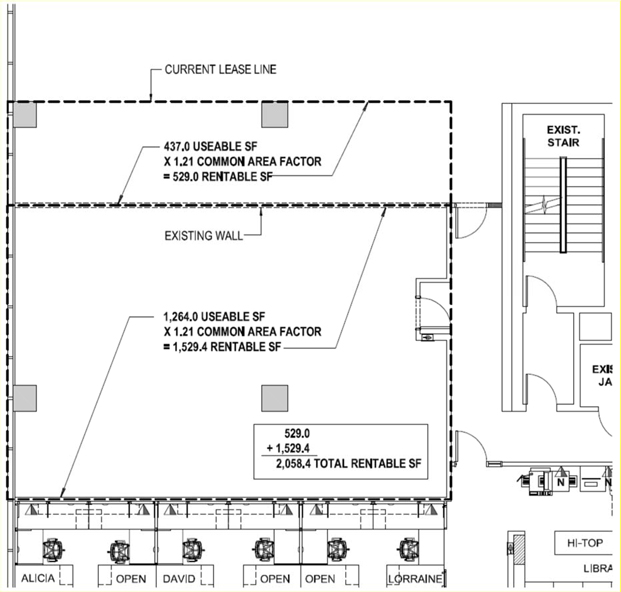
(a) Expansion Premises. The term "Expansion Premises" is hereby defined to be and to mean that certain space located on the third floor of Building 10 (the "Building"), consisting of 2,058 rentable square feet of space (which is the final agreement of the parties and not subject to adjustment), as outlined on Exhibit A, attached hereto and incorporated herein by this reference. Accordingly, effective as of the Tenth Amendment Expansion Commencement Date (as defined below), the Total Premises, as expanded by this Amendment (and not including the Premises as re-measured and expanded on the Eighth Amendment Extension Commencement Date (i.e., February 1, 2023)), shall be deemed to consist of a collective total of 306,548 rentable square feet of space. Effective on February 1, 2023, the Total Premises, as expanded by this Amendment, shall be deemed to consist of a collective total of 306,828 rentable square feet of space.
(b) Tenth Amendment Expansion Commencement Date. The term "Tenth Amendment Expansion Commencement Date" is hereby defined to be and to mean April 1, 2016. If Tenant is allowed to occupy, use, work in or otherwise enter the Expansion Premises prior to the Tenth Amendment Expansion Commencement Date, the terms and conditions of the Lease as hereby amended shall apply, except that Tenant shall not be required to pay Rental for any period(s) prior to the Tenth Amendment Expansion Commencement Date for the Expansion Premises.
(c) Expansion Term. The term "Expansion Term" is hereby defined to be and to mean that period of time commencing on the Tenth Amendment Expansion Commencement Date and expiring contemporaneously with the Lease on the Expansion Expiration Date (i.e., January 31, 2028), as defined in Section 2(c) of the Ninth Amendment.
(d) Acceptance. Effective on the Tenth Amendment Expansion Commencement Date, Landlord hereby leases to Tenant and Tenant hereby leases from Landlord, on the terms and conditions set forth in the Lease, as amended, and herein, the Expansion Premises. Tenant shall accept the Expansion Premises in its present "as is" condition.
| 2 |
3. Base Rental for the Expansion Premises. During the Expansion Term, Tenant shall pay to Landlord Base Rental for the Expansion Premises (in addition to its Base Rental obligation for the original Premises), which shall be payable in monthly installments as follows:
EXPANSION PREMISES
| Months | Annual Rate/RSF | Monthly Installment | ||||||
| Tenth Amendment Expansion | ||||||||
| Commencement Date - 08/31/16 | $ | [*] | $ | [*] | ||||
| 09/01/16 – 08/31/17 | $ | [*] | $ | [*] | ||||
| 09/01/17 – 08/31/18 | $ | [*] | $ | [*] | ||||
| 09/01/18 – 08/31/19 | $ | [*] | $ | [*] | ||||
| 09/01/19 – 08/31/20 | $ | [*] | $ | [*] | ||||
| 09/01/20 – 08/31/21 | $ | [*] | $ | [*] | ||||
| 09/01/21 – 08/31/22 | $ | [*] | $ | [*] | ||||
| 09/01/22 – 08/31/23 | $ | [*] | $ | [*] | ||||
| 09/01/23 – 08/31/24 | $ | [*] | $ | [*] | ||||
| 09/01/24 – 08/31/25 | $ | [*] | $ | [*] | ||||
| 09/01/25 – 08/31/26 | $ | [*] | $ | [*] | ||||
| 09/01/26 – 08/31/27 | $ | [*] | $ | [*] | ||||
| 09/01/27 – Expansion Expiration Date (01/31/28) | $ | [*] | $ | [*] | ||||
Except as otherwise expressly set forth herein, Base Rental shall be payable pursuant to the terms and conditions of Article 2 of the Original Lease.
4. Tenant’s Percentage Share and Operating Expenses. Beginning on the Tenth Amendment Expansion Commencement Date, Tenant’s Percentage Share, as defined in Section 2.3(c) of the Original Lease, shall be increased based upon an amount determined by (a) the fraction, the numerator of which is the total number of Rentable Square Feet then leased by Tenant in Building 10, and the denominator of which is the greater of (i) ninety-five percent (95%) of the total Rentable Square Feet in Building 10, or (ii) the total Rentable Square Feet in Building 10 actually leased or occupied by tenants.
5. Tenant’s Parking Spaces. Beginning on the Tenth Amendment Expansion Commencement Date, Tenant shall have the right to use an increased number of parking spaces based on the new rentable area of the Expansion Premises, pursuant to the same terms and conditions as Section 8 of the Eighth Amendment and Section 5 of the Ninth Amendment.
6. Brokers. Tenant hereby represents and warrants to Landlord that Tenant has not dealt with any real estate brokers or leasing agents, and Landlord hereby represents and warrants to Tenant that Landlord has not dealt with any real estate brokers or leasing agents in connection with the negotiation and execution of this Amendment. Landlord and Tenant hereby agree to indemnify and to hold each other harmless against any loss, expense, or liability with respect to any claims for commissions or brokerage fees arising from or out of any breach of the foregoing representation and warranty.
7. Energy and Environmental Initiatives. Tenant shall cooperate with Landlord in any programs in which Landlord may elect to participate relating to the Building’s (i) energy efficiency, management, and conservation; (ii) water conservation and management; (iii) environmental standards and efficiency; (iv) recycling and reduction programs; and/or (v) safety, which participation may include,
| 3 |
without limitation, the Leadership in Energy and Environmental Design (LEED) program and related Green Building Rating System promoted by the U.S. Green Building Council, as well as the Energy Star program promoted by the U.S. Environmental Protection Agency and the U.S. Department of Energy.
8. Electronic Signatures. This Amendment may be executed in counterparts. All executed counterparts shall constitute one (1) agreement, and each counterpart shall be deemed an original. The parties hereby acknowledge and agree that electronic signatures, facsimile signatures or signatures transmitted by electronic mail in so-called "pdf" format shall be legal and binding and shall have the same full force and effect as if an original of this Amendment had been delivered. Landlord and Tenant (i) intend to be bound by the signatures (whether original, faxed or electronic) on any document sent by facsimile or electronic mail, (ii) are aware that the other party will rely on such signatures, and (iii) hereby waive any defenses to the enforcement of the terms of this Amendment based on the foregoing forms of signature.
9. Miscellaneous. With the exception of those matters set forth in this Amendment, Tenant's leasing of the Premises shall be subject to all terms, covenants and conditions of the Lease. In the event of any express conflict or inconsistency between the terms of this Amendment and the terms of the Lease, the terms of this Amendment shall control and govern. Except as expressly modified by this Amendment, all other terms and conditions of the Lease are hereby ratified and affirmed. The parties acknowledge that the Lease is a valid and enforceable agreement and that neither party is aware of any demands, claims (matured or unmatured), losses, rights of set off or deduction asserted or assertable against the other party in any manner relating to the Lease, or arising in connection with the Premises or the Project.
(Signatures on following Page)
| 4 |
IN WITNESS WHEREOF, the foregoing Tenth Amendment to Lease is dated effective as of the date and year first written above.
| WITNESS: | LANDLORD: | |||
| SPUS7 MIAMI ACC, LP, | ||||
| a Delaware limited partnership | ||||
| By: | /s/Theresa Morris | By: | /s/Michael Burrichter | |
| Name: | Theresa Morris | Name: | Michael Burrichter | |
| Title: | Vice President | |||
| By: | /s/Susandra Soumetho | Date: | ||
| Name: | Susandra Soumetho | |||
| By: | /s/Theresa Morris | By: | /s/Claudia Walraven | |
| Name: | Theresa Morris | Name: | Claudia Walraven | |
| Title: | Assistant Vice President | |||
| By: | /s/Susandra Soumetho | Date: | ||
| Name: | Susandra Soumetho | |||
| WITNESS: | TENANT: | |||
| NCL (BAHAMAS) LTD., | ||||
| a Bermuda company, d/b/a Norwegian Cruise Line | ||||
| By: | /s/Lincoln M. Vidal | |||
| Name: | Lincoln M. Vidal | |||
| By: | /s/Yakelin Chirino | By: | /s/Wendy Beck | |
| Name: | Yakelin Chirino | Name: | Wendy Beck | |
| Title: | Executive Vice President & Chief Financial Officer | |||
| Date: | 4/13/16 | |||
CONSENT OF GUARANTOR
The undersigned Guarantor under the original Guaranty of Lease dated November 27, 2006 (the "Guaranty"), does hereby consent to the foregoing Amendment. Guarantor acknowledges and agrees that the Guaranty is in full force and effect and shall continue to apply to the Lease, as amended by this Amendment.
NCL CORPORATION LTD.,
a Bermuda company
| By: | /s/Frank Del Rio | |
| Name: | Frank Del Rio | |
| Title: | President & Chief Executive Officer |
| 5 |
EXHIBIT A
EXPANSION PREMISES
